der neubau der er-lebt-gemeinde soll nicht nur den raumanforderungen einer jungen, dynamischen gemeinde rechnung tragen, sondern auch der bevölkerung der stadt landau attraktive und multifunktionelle räumlichkeiten anbieten, welche für die stadt im sozialen, kulturellen wie auch gewerblichen bereich einen mehrwert darstellen.
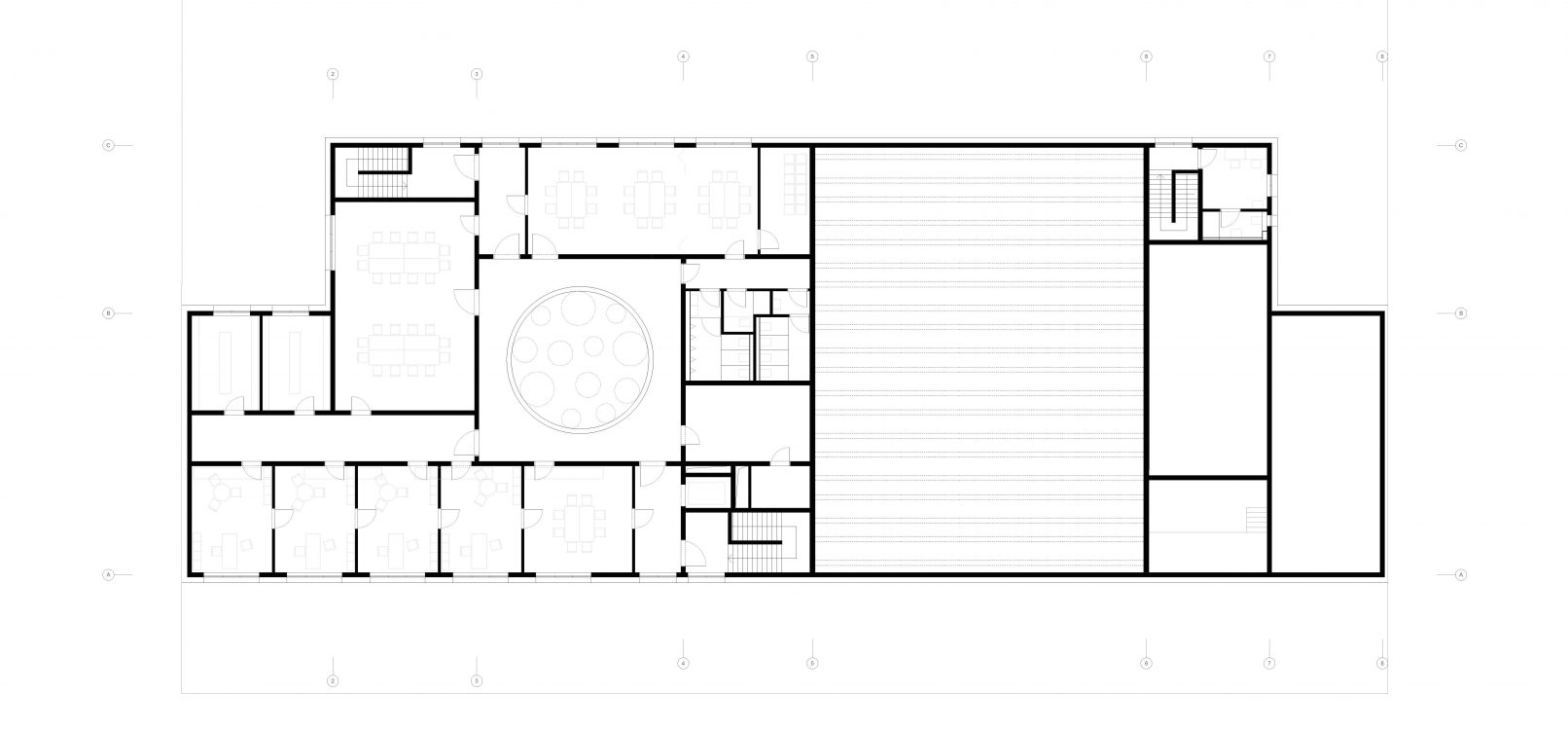
der gemeindeneubau (modul 1), ein kompakter, einheitlicher baukörper, konsequent orientiert zu marie-curie-strasse, auf strassenebene transparent und einladend, in seiner gesamtheit nüchtern und funktional. der gemeinschaftsbereich ist organisiert auf 3 ebenen, welche über das zentrale atrium räumlich miteinander verwoben sind. dieses liefert natürliches Licht, gewährleistet eine effiziente natürliche belüftung des baukörpers, bietet raum für kommunikation, aufenthalt und spiel und stellt somit das herzstück des ge- meindelebens dar. der saalkomplex hingegen ist linear angeordnet, angegliedert an das grosszügige foyer, welches auch die verbindung zum gemeinschaftsbereich bildet. dieses ermöglicht multifunktionale räumliche abfolgen, bei denen ein hohes personenaufkommen kompensiert werden muss. der saalkomplex wird im osten durch einen technikriegel mit bühne ergänzt, um die logistischen abläufe der lagerräume, technik und anlieferung zu optimieren.
die module 2 (sporthalle) und 3 (bürogebäude) werden als freistehende baukörper konzipiert, die zeitlich und funktional unabhängig hinzugefügt werden können.
wettbewerb 1. preis 2012
multifunktionsgebäude mit veranstaltungssaal
lph 1-7 + künstlerische Oberleitung lph 8
realisierung 2017 – 2019
bgf 2.800 m2
zusammenarbeit mit benjamin krampulz, dipl.-ing architekt
photos: roland halbe

















